
老话说的好,买不买房看地段,掏不掏钱看户型。
户型到底重不重要?
小编问了几个朋友,得到了这样的答案:
“喜欢养花种草,没有大阳台的户型不会买。”
“买房肯定会看户型,各自独立的空间很重要。”
“看户型很重要,空间必须大,房间也要多。”
……
那什么样的户型才是好户型,面对多样户型,又应该如何选择?
今天给大家推荐一个大盘——运河1283·云水岸。听说,它推出的建面约110-119㎡亲水小高层和119-168㎡宽境洋房,户型特别优秀,一起来看看这两大“王炸组合”,是否能打动你。

水岸灵动户型
首次置业、三口之家“心头好”
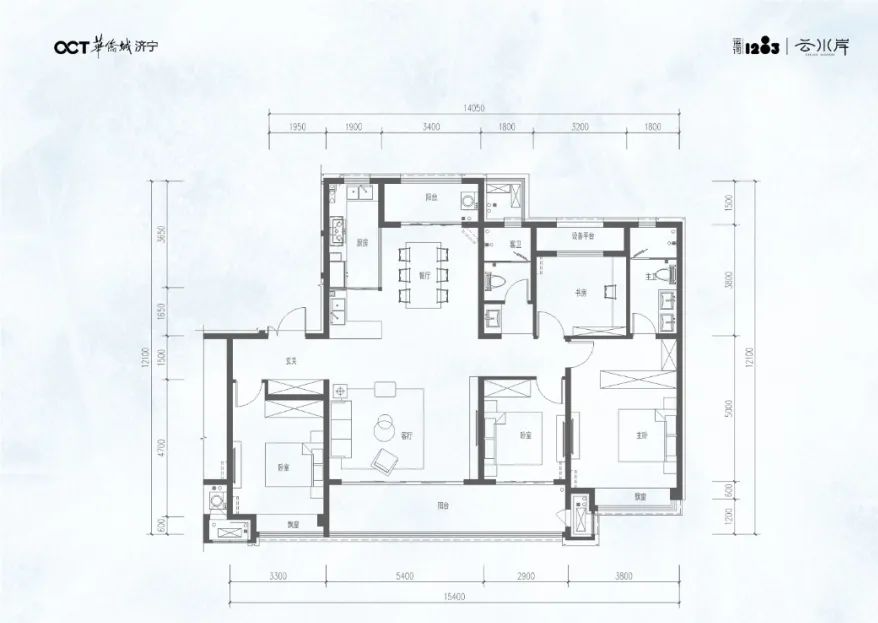
要小编说,运河1283·云水岸,受到济宁购房者的追捧,可不单单只是因为它的生态环境和地段优势。它推出的建面约110-119㎡的亲水小高层,功能性拉满,可以说是首次置业的户型典范了。

※运河1283·云水岸小高层效果图
云水岸建面约110㎡和119㎡的小高层,两梯两户设计,打造私密化的居住环境的同时,大大减少了候梯时间,进而提升居住品质。三室两厅两卫的设计,在空间上实现了功能的最优化,兼顾了实用性和舒适性。三开间朝南且动静分区,南向观景阳台连通客厅与主卧,大大提升了室内的空间感。

※运河1283·云水岸实景样板间
横向餐客厅的设计,相当大气;主客双卫干湿分离,非常实用。就算是三代同住,也不会显得局促。北向还预留一个房间,根据不同的居住需求,可以改造成茶室、工作室等;二胎家庭,则可改造成儿童房或小书房。


※样板间效果图

改善当道 选对户型进阶理想生活
现在大家都在说的改善置业,到底要改善什么?不论是想要将年迈的父母接到身边照顾,还是家里添丁加口,首要就是增加房屋的面积。
其次,改善的是居住环境。对于大部分改善群体来说,忙碌大半辈子,买一套房不就是为了享受生活么?所以,除了优质的配套、便利的交通外,社区内外一定要有超高的绿化率,能够满足日常所需才是最重要的。要是能够亲水而居,那更是再好不过。

※项目周边实景
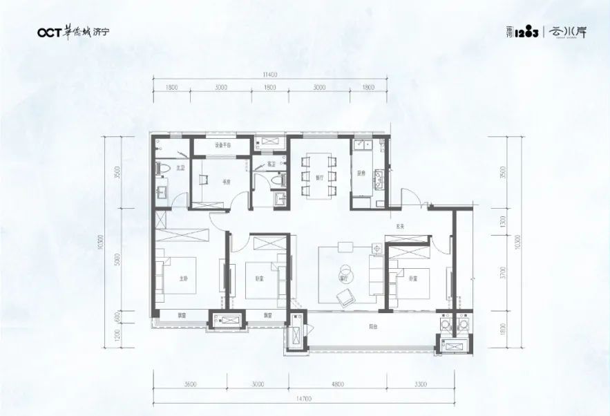
据小编了解,运河1283·云水岸洋房产品,推出了建面约119㎡、130㎡、143㎡、168㎡四大户型,享一线洸府河观景视野,无论是三口之家,还是四世同堂,完全可以满足购房者的多样化需求。
我们先从建面约119㎡的户型说起,三房两厅两卫设计,空间功能齐全。小编认为在这样的面积段下,还能做到约7.75米的大阳台,这是很难得的;南向三开间,主卧独卫,再加上一个衣帽间,将每一寸空间设计都恰到好处。

※运河1283·云水岸119㎡户型图
预算多一点的,来看看云水岸建面约143㎡四室两厅两卫户型,可以说是满足了小编居住空间的所有想象!约8.1米超宽阳台,闲暇时可以俯瞰一下洸府河风景,绝佳的视野效果建议大家来体验一下。

※运河1283·云水岸143㎡户型图
下面的这个户型不用小编多说,洸府河畔的大洋房,只一眼就能让人惊艳。
品质终极改善建面约168㎡户型,同步一线城市的前沿设计,将餐厅、客厅、休闲区主轴贯穿,动线流畅;约5.4米宽厅,满足奢适居住、家宴聚会、圈层会客等多元需求。南向总面宽约15.4米,其中阳台约8.3米,不仅让空间变得开阔,也能增加居室的整体明亮度和舒适度,还能拉伸景观视角,视野更佳。

※运河1283·云水岸168㎡户型图
小编看过这几个户型后,就了解为什么云水岸能那么受欢迎了。毕竟,在当下的济宁,拥有优良地段和优越配套,还能享受水岸的生态环境,已经是难得,再加上云水岸优秀的户型设计,更加令人心动。
不论您是首次置业,还是改善置业,运河1283·云水岸此次推出的建面约110-119㎡亲水小高层和119-168㎡宽境洋房,是非常值得大家入手的。


(来源:济宁华侨城)